15,450,000 MXN
camas4 recámaras
baños
baños
6 bañosestacionamientos
4estacionamientos
4 estacionamientosÁrea
area de 410 metros cuadrados
410m2Descripción
Mostrar más
Yucatán Country es un exclusivo desarrollo en la Península de Yucatán, que abarca 320 hectáreas y destaca por su lujosa Casa Club de 5 hectáreas. Este espacio incluye 5 restaurantes, 5 bares, canchas de tenis, fútbol 7, pádel, albercas y vistas al campo de golf y cenotes naturales. La comunidad ofrece seguridad y un entorno armonioso, siendo reconocida como una de las mejores para vivir en América Latina. El Jaguar Golf Course, diseñado por Jack Nicklaus y sede del Mundo Maya Open de la PGA Latinoamérica, ha sido galardonado como el "Mejor campo de golf de México y Latinoamérica" por los International Property Awards.
La residencia se ubica dentro de la privada Oasis No.118 al cuenta con amenidades exclusivas.
PLANTA ALTA
*Recámara secundaria con vestidor, baño completo y balcón con vista al jardín
*Recámara secundaria con vestidor, baño completo y balcón con vista al frente
*Recámara secundaria con vestidor, baño completo con jardín y balcón con vista al frente
*Estar de TV familiar
*Lavandería completa con patio de tendido
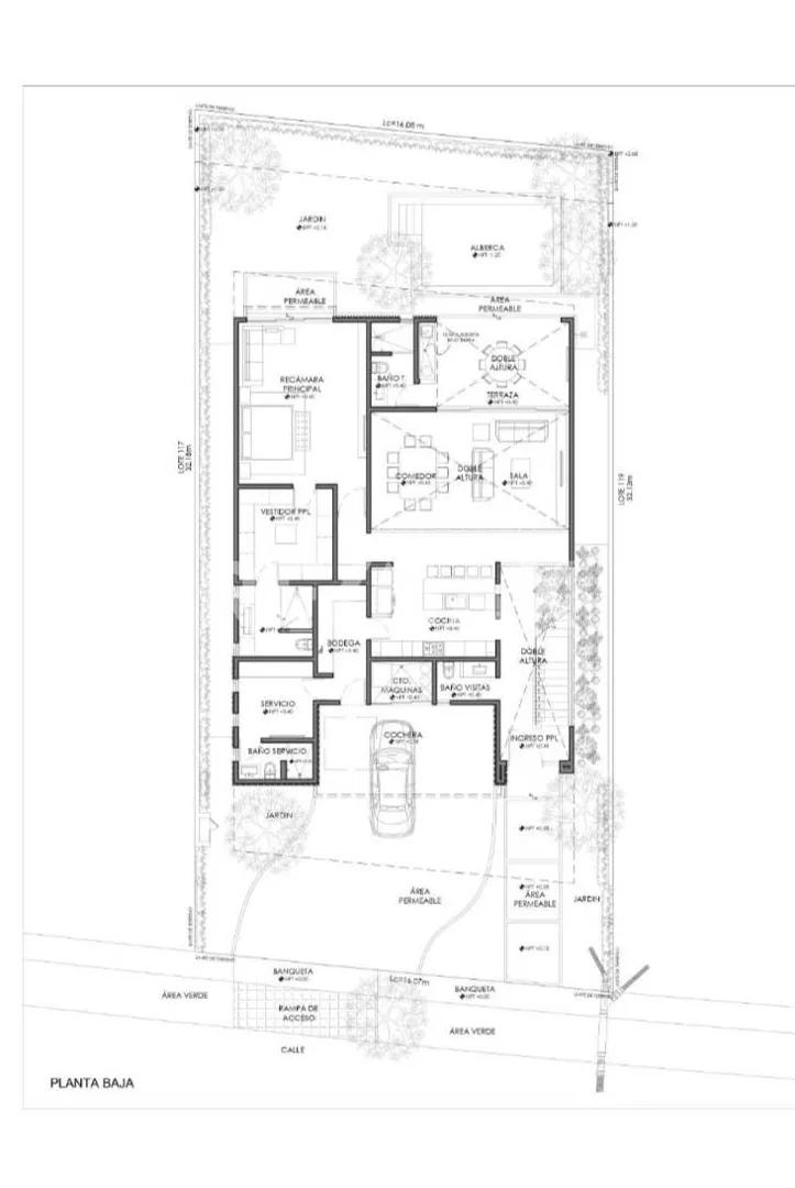
PLANTA BAJA
*Cochera para 2 autos (más 2 sin cubierta)
*Vestíbulo de acceso con techos a doble altura
*Medio baño de visitas
*Escalera flotada con barandales de cristal templado
*Cocina integral equipada con isla desayunador (no incluye refrigerador)
*Sala-Comedor a doble altura con salida directa a la terraza
*Terraza techada a doble altura con barra de bar. (Incluye tarja)
*Baño completo exterior para piscina
*Piscina de chukum con sistema de filtros
*Jardín posterior son sistema de riego automatizado
*Recámara Principal con amplio vestidor, baño completo y acceso al jardín posterior.
*Cuarto de servicio con baño completo
*Cuarto de máquinas en cochera
*Bodega con segundo acceso (Conecta cochera y cocina)
ACABADOS
Porcelanato 120 x 60 en pisos y en muros de baños
Carpintería en clósets de vestidores
Carpintería en muebles de baño
Granitos naturales en mesetas de cocina, baños y barras de terraza
Portón de ingreso de cedro macizo
Cristales templados en baños, barandales, escaleras y domos
Espejos de baño con iluminación LED
Domos con pergolado tipo madera
Aluminios Cuprum linea Eurovent Premium
INCLUYE:
7 Equipos de aire acondicionado inverter
Equipo de filtros de piscina
Riego automatizado en jardines
Cisterna 4,000 lt
Tanque estacionario de gas
Suavizador de agua
La casa se entrega en marzo 2025
*Disponibilidad y precio sujetos a cambio sin previo aviso.
Las imágenes son con propósito de ilustración y pueden variar del producto final.
(5)
Características
Terraza/Roof Garden
Número de Niveles2
Cuota de Mantenimiento4000
Patio
Ubicación
Oasis, Mérida, Yucatán
Estadísticas
Rentabilidad de la zona
6.11%
Rentabilidad de esta propiedad
5.71%
Valor hey hom
$11.4 M - $13.9 M
Precio promedio
$36,215/m²
Área promedio
368m²
Propiedades analizadas
2,110




